Villa a schiera in vendita

Filacciano, Strada Di Valle Lucola
€ 155.000
8 locali 8 locali
175 Mq 175 Mq
3 bagni 3 bagni

Villa a schiera in vendita

Filacciano, Strada Di Valle Lucola

Descrizione annuncio

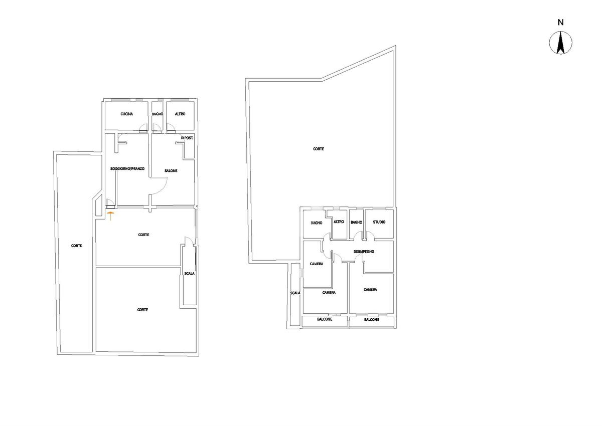
In località Valle Lucola, a pochi minuti in auto dal centro del paese, proponiamo in vendita una graziosa villa a schiera angolare di 175 mq dislocata su due livelli, con spazi esterni ben distribuiti e sempre assolati.

L’ingresso alla villetta si trova ad un livello rialzato rispetto a quello stradale. Gli interni si presentano estremamente curati e si aprono ad un meraviglioso salone doppio suddiviso in zona relax con termocamino, che crea un’atmosfera calda e familiare, ed una dedicata a soggiorno-pranzo. Completano il piano una cucina separata abitabile, una cameretta adatta anche come studio ed un bagno con doccia e finestra, oltre a due vani sottoscala utili come dispense e ripostigli.

La scala interna rivestita in marmo conduce al piano superiore, dedicato interamente alla zona notte e arricchito da due ampie camere matrimoniali padronali con balcone, due ulteriori camere da letto da adibire eventualmente a camera per gli ospiti e/o studio, da un bagno di servizio adibito anche a lavanderia con accesso diretto agli spazi esterni e da un’elegante bagno padronale con doppio lavabo e vasca idromassaggio. Il disimpegno del piano consente sia una suddivisione in 2 unità abitative grazie ad un secondo accesso tramite scala esterna o la realizzazione di una quinta camera.

Tutti gli ambienti interni dell'immobile sono dotati di climatizzazione.

Gli esterni della villetta sono caratterizzati da una corte antistante l’ingresso dotata di tenda da sole con chiusura totale, ideale per pranzi/cene e momenti conviviali all’aperto, oltre a spazi verdi vivibili arricchiti da piante ornamentali e da frutto.

Completano la proprietà tre posti auto privati scoperti.

Ti piace questa casa e pensi possa essere in linea alle tue esigenze? Contattaci per fissare una visita:

Tel. 0765.481129
Whatsapp 328.0571200

Se invece stai pensando sia arrivato il momento di cambiare casa ma devi prima vendere la tua, approfitta della nostra promozione 'PermuTiAmo'.
Chiedi ad uno dei nostri consulenti la valutazione senza impegno del tuo immobile, avrai un canale dedicato e sconti provvigionali sia sull'acquisto che sulla vendita.

Segui anche i nostri canali Social per rimanere sempre aggiornato sulle nuove proposte immobiliari

INSTAGRAM: tecnocasa_fianoromano
FACEBOOK: Gruppo Tecnocasa Fiano Romano
YOUTUBE: Tecnocasa Fiano Romano

Mostra tutto

Nelle vicinanze

Trasporto pubblico Trasporto pubblico
Trasporto pubblico
1,5 Km
Scuole Scuole
Scuole
1,5 Km
Farmacia Farmacia
Farmacia
1,4 Km
Supermercati Supermercati
Supermercati
1,3 Km
Conad City
2,3 Km
Bar Bar
Bar
2,9 Km
Ristoranti Ristoranti
Ristoranti
1,3 Km
Castello Torrita
2,5 Km
Mostra tutto

Caratteristiche

Rif.:
61147303
Piano:
2 di 2 (Piano su più livelli)
Posti auto:
3
Balconi:
2
Terrazzi:
1
Camere da letto:
5
Mostra tutto
Prezzo Prezzo
€ 155.000
Rata mutuo Rata mutuo
€ 731 / mese
Proponi il tuo prezzoProponi il tuo prezzo

Classe Energetica

G
G
G
G
G
G
G
G
G
EP invernale del fabbricato:
EP estiva del fabbricato:
Anno di costruzione:
2009
Riscaldamento:
Autonomo
Tipo impianto:
A radiatori
Tipo alimentazione:
GPL

Ti interessa visionare l'immobile?

Fissa un appuntamento  Fissa un appuntamento

Richiedi informazioni

Clicca su Leggi per aprire l'informativa
* Questi campi sono obbligatori

Calcola il tuo mutuo

Semplice e senza impegno
Anticipo

( % )
Mutuo

( % )

pochi semplici passi

inserisci i tuoi dati
Questionario completato
Grazie per aver richiesto un appuntamento senza impegno con un nostro Consulente del Credito e Assicurativo.

Hai inserito correttamente tutti i dati necessari e a breve riceverai una e-mail con un link da convalidare per inviare i tuoi dati.
Affiliato
Studio Fiano Srl
Via Aldo Moro, 99 00065 Fiano Romano (RM)

Il nostro staff


  • Claudia Crispino
    Coordinatrice

  • Gianluca Corvino
    Collaboratore

  • Siria Improda
    Coordinatrice

  • Luca Armano
    Affiliato
Via Aldo Moro, 99 00065 Fiano Romano (RM)
Zona: Fiano Romano-Civitella S.Paolo-Nazzano
Mostra su mappa
Orari: DAL LUNEDI' AL VENERDI' - Dalle 9 alle 13:00 e dalle 15:30 alle 19:30 - SABATO dalle 9 alle 13:00
Affiliato
Studio Fiano Srl
Via Aldo Moro, 99 00065 Fiano Romano (RM)

2026 Tecnocasa Franchising S.p.A. - P. IVA 08365160152 - Via Monte Bianco 60/A 20089 Rozzano (MI). Ogni agenzia ha un proprio titolare ed è autonoma. Privacy policy | Policy utilizzo | Cookie policy